house prekeng

in progress . 2025

phnom penh . cambodia

 
 

House Prekeng is a contemporary villa shaped by climate, landscape, and the quiet aspirations of its inhabitants. Rooted in the tropical context of Phnom Penh, the design seeks a refined balance between openness and shelter, tradition and modernity. Architecture, landscape, and craftsmanship are interwoven to create a calm yet richly nuanced living environment — modest in appearance, yet generous in experience, and carefully tailored to the client’s way of life.

 
 

Architectural Narrative

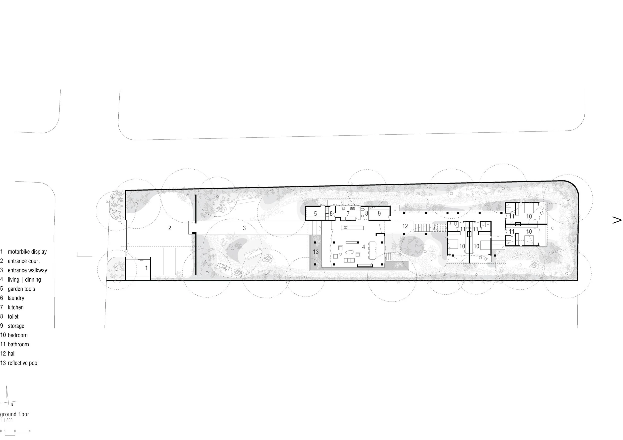
The long, slender site becomes the generator of the architectural concept. A sequence of open courts unfolds gradually from the point of arrival: the entrance court, a lush front garden, a central courtyard, and finally the backyard. These outdoor spaces punctuate the journey through the house, bringing light, air, and greenery deep into the interior while structuring the building into two distinct volumes.

The front volume accommodates the shared spaces of the house. Living and dining areas occupy the ground floor and open generously toward the surrounding gardens, while a home office above offers a quieter, elevated retreat. The rear volume is dedicated to private life, with four bedrooms at garden level and a master suite above, crowned by a generous shaded porch overlooking the greenery.

The living room is conceived as the heart of the home — a contemporary interpretation of the garden hall. Fully glazed on three sides, it dissolves the boundary between inside and outside and serves, in keeping with local tradition, as both a space of arrival and gathering. Along the northern edge, a discreet service spine integrates the wet kitchen, laundry, storage, and day toilet, ensuring functional efficiency without disrupting the spatial flow.

Each bedroom opens onto a private balcony, offering moments of retreat and connection to nature. Circulation passes through a service-layer buffer that provides comfort, privacy, and climatic protection from the open arcade. Washbasins positioned outside the bathrooms further enhance daily convenience and spatial generosity.

 

Exterior Expression

A continuous arcade weaves through the project, providing shaded circulation and evolving into an elegant bridge that frames layered views across courts, gardens, and interior spaces. Structural concrete columns become sculptural elements: externally hammered to reveal their raw mineral character, and internally wrapped in matt-polished stainless steel, reflecting light with subtle sophistication.

The arrival sequence is intentionally elongated and ceremonial. From the parking court, a walkway leads toward an elevated entrance platform, flanked by a reflective pool. The path passes a quiet lawn and shaded outdoor seating beneath mature trees, establishing a sense of calm, dignity, and timeless elegance before entering the home.

 

Interior Atmosphere & Craft

Materiality plays a central role in shaping the interior experience. Honest materials are celebrated for their texture, weight, and the visible imprint of craftsmanship. Handmade, dark-pigmented terrazzo floors unify the communal spaces, while split and smoothened slate stone defines the wet areas of the bedrooms. Private resting zones are finished with dark, oiled hardwood flooring, creating warmth and intimacy.

Bathrooms are conceived as tactile retreats, featuring hammered concrete walls, a sculpted concrete bathtub, and restrained detailing. Hand-brushed mineral paint, exposed concrete ceilings, and carefully balanced proportions contribute to a quiet, contemplative atmosphere. The exterior façades are finished with rubbed-off plaster, allowing the building to age gracefully and respond sensitively to the tropical environment.

Climate & Energy Strategy

House Prekeng is designed as a responsive and resilient tropical dwelling. Deep roof overhangs protect interiors from harsh sunlight and monsoon rains, while green roofs reduce heat gain and help stabilize the microclimate. Both main roofs are equipped with photovoltaic panels that provide shading and generate electricity for domestic use.

Thermal core insulation throughout exposed walls and roofs significantly reduces energy demand. Together, these passive and active strategies enable the villa to operate with minimal dependence on external energy sources — aligning environmental responsibility with long-term comfort and efficiency.